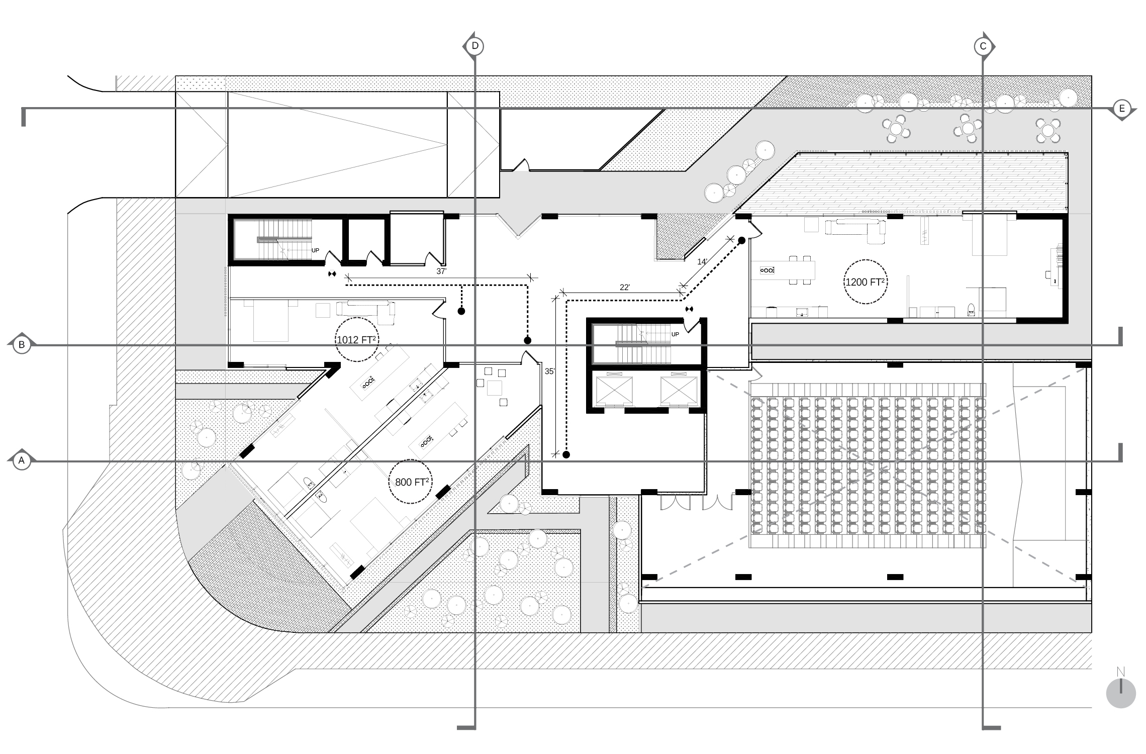
Cultural Center
135 NE 4st. ST.
Design District, Miami, Florida
Comprehensive Studio 2016
10,120 FT2

Central Core | Activate Facades | Constant Circulation


The concept of the Rivet is driven by a central core with a constant circulation path that is intersected by four rotating wings, each facing the site’s main facade points.
Program
- Retail
- Offices
- Auditorium
- Residential







